Op dit moment zijn we bezig met het ombouwen van de Illegaliteitsweg 51 in Rustenburg. De woning zal omgebouwd worden in 3 opzichzelfstaande appartementen.
Nieuwsgierig of interesse in dit project? Neem dan contact met ons op.
FOTO’S
Impressie voorzijde woning na verbouwing
Impressie zijkant woning na verbouwing
Impressie indeling tuin na verbouwing
Huidige staat woning
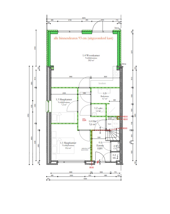
Begane grond appartement A







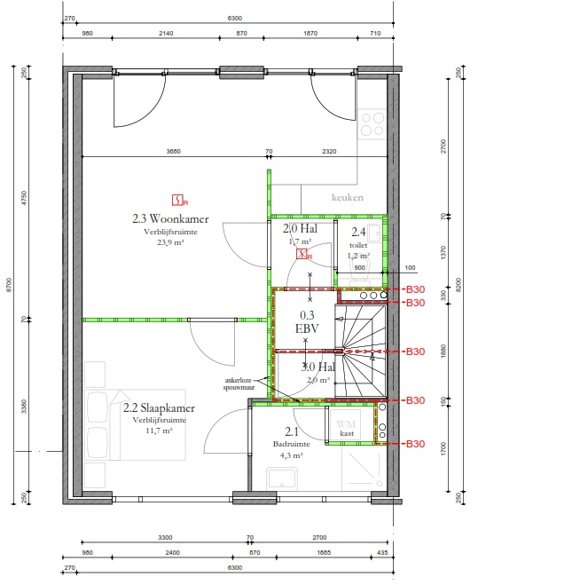
Appartement B








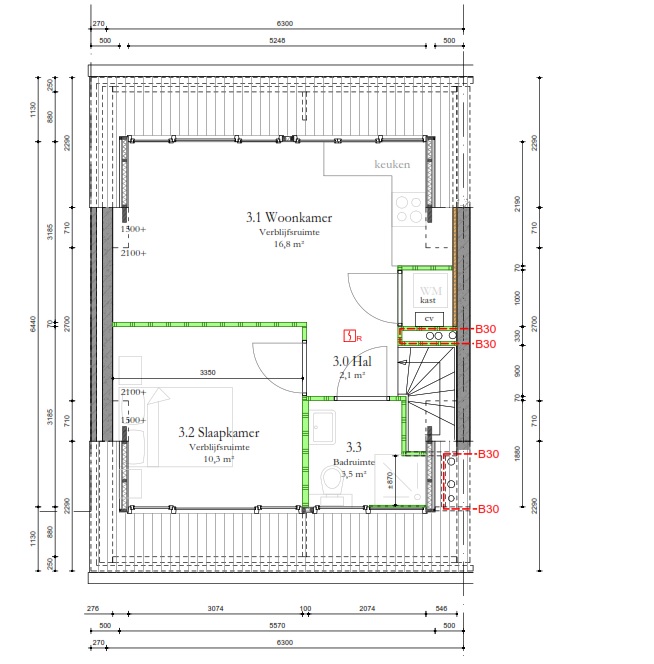
Appartement C








